
相關產品
一、裂縫監測站產品簡介
裂縫監測站又稱自動遠程裂縫測寬儀,裂縫監測站主要用于監測滑坡體表面裂縫變化情況,進行動態監測,為結構物表面裂縫等可視病害的檢測提供解決方案。本產品廣泛應用于地質災害、巖土工程、建筑工程、交通、水利、市政等多個監測領域,特別適用于地表裂縫、卸荷裂隙、房屋或結構裂縫等相對位移的精確監測。
在地質災害監測中,能夠實時捕捉地表裂縫的微小變化,為滑坡、崩塌等災害預警提供關鍵數據;在巖土工程中,可有效監測卸荷裂隙的發展趨勢,確保工程安全;
在建筑工程領域,能夠精準檢測房屋或結構裂縫的位移情況,為建筑物的健康診斷和維護提供科學依據;
在交通、水利和市政工程中,同樣能夠發揮重要作用,確保基礎設施的長期穩定運行。
通過高精度的監測數據,幫助用戶及時采取應對措施,降低風險,保障工程和人員安全。
二、裂縫監測站技術參數
量程 | 0-1000mm |
精度 | ±0.02%F.S |
響應時間 | 1s |
外殼材質 | ABS |
供電電壓 | 12-24VDC(0.4W@12V) |
通訊方式 | modbus-485 |
太陽能板功率 | 8W |
太陽能板標準工作電壓 | DC5V |
內置鋰電池容量 | 5000mAh |
支架材質 | 不銹鋼 |
采集器 | 帶3年流量 |
數據傳輸 | 標配每10分鐘傳輸一次,支持定制 |
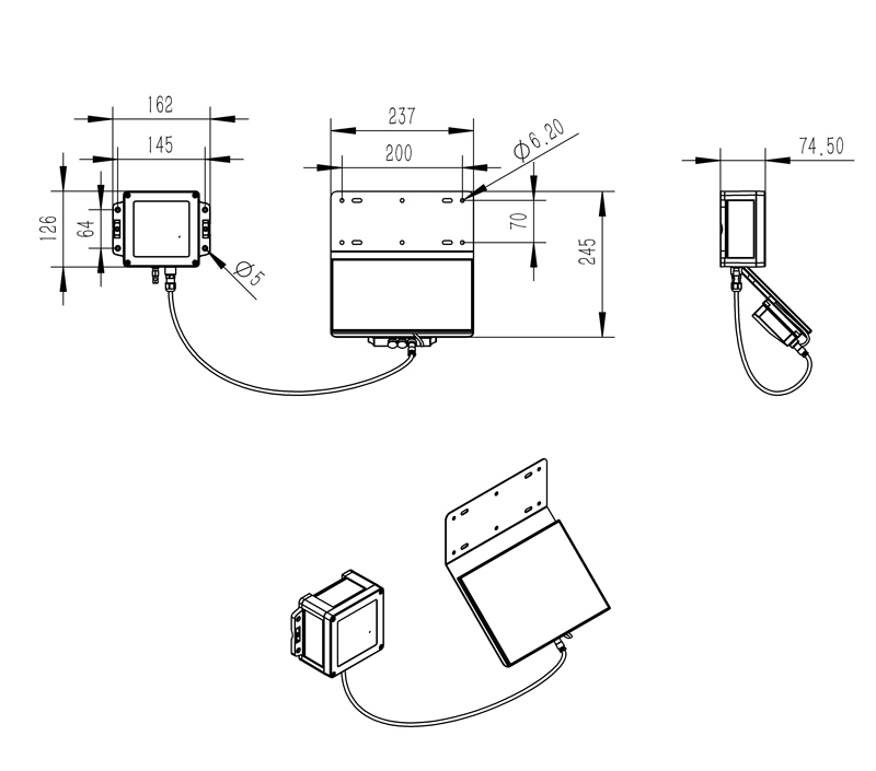
三、裂縫監測站產品尺寸圖
上一篇:裂縫監測儀 下一篇:沒有了!